View EPC

Black Friday at Get Living – Price reductions on selected homes + £250 Amazon voucher

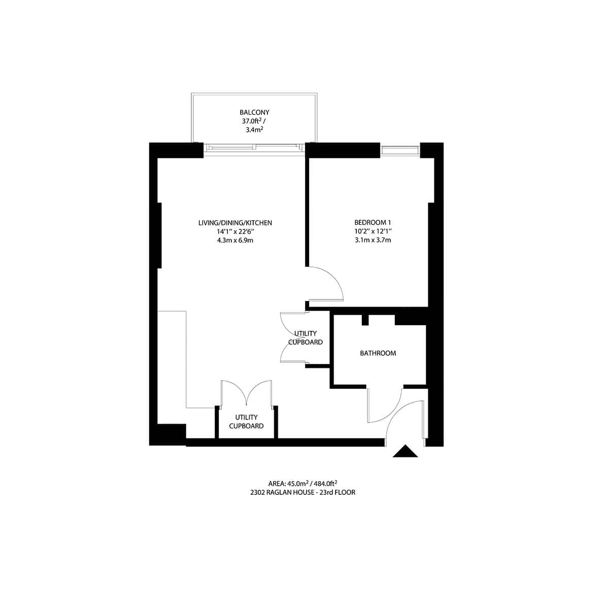
Situated on the 23rd floor of Raglan House, this one bedroom, one bathroom home is available to rent fully-furnished.

This spacious apartment features an open-plan living area for the kitchen, lounge and dining spaces, with the addition of a large balcony where you can take in some of the best views across London. 

Integrated kitchens feature appliances including a multi-functional oven and induction hob and come with plenty of cupboard space. The bedroom  have built-in wardrobes, complemented by a chest of drawers and bedside tables. Marble bathrooms give this property an opulent yet timeless look, with heated mirrors (to prevent steaming) containing even more storage.  

Wi-Fi is included and set up for when you move in, getting you connected right away. All Get Living homes have an energy efficiency rating of B, helping conserve energy for the planet, and your pocket. Being connected to the district heating and hot water system means no space-hogging boiler in your home, but please note this means you cannot switch supplier.  

Elephant Central lives up to its name by being in the heart of a vibrant community, just south of the River Thames. You’ll have everything you need in this Zone 1 location, with shops, restaurants and a Gymbox all within a few minutes’ reach, as well as being just a short walk away from the South Bank and Borough.

Additional information:

  • Please note photos are for illustrative purposes only – layouts and features may vary
  • Pet friendly – all applicants with a pet must sign our pet policy agreement 
  • Freewave Wi-Fi is included free of charge
  • All other utilities including electricity, heating and hot water to be paid separately by the resident(s) directly to the provider
  • A metered water supply is provided by Thames Water and charged based on usage
  • Heating and hot water is provided by Community Utilities and is charged by household usage. Thermostats can be controlled within the home.
  • On-site parking is available to rent at additional cost and subject to availability – please ask our team for more information
  • Council tax band – this property is within band D (Southwark Council) 
  • Monthly rental cost advertised is based on 36-month tenancies, with break clause. For 12-month tenancies and above, please speak to our team
  • A Security Deposit equal to five weeks’ rent is payable for this property. The deposit will be held by the Tenancy Deposit Scheme
  • Across the road from Elephant Central, works are underway on the redevelopment of Elephant and Castle’s town centre, with the current phase providing new homes for rent, new retail and leisure facilities, a UAL campus and new underground entrance. The final phase will commence in 2026 on the location of the London College of Communication as the College is currently situated. For more information visit the ‘Regeneration’ section of Southwark Council’s website.
  • T&Cs – any selected home benefitting from a Black Friday price reduction, reserved before 21st Nov for a November move in date, will receive a £250 Amazon Voucher.  One voucher per tenancy, to be sent to a nominated resident on or after their tenancy start date.
Zone 1 Location
Zone 1 Location
Wi-Fi Included
Wi-Fi Included
Concierge
Concierge
Great Transport Links
Great Transport Links
On-site Maintenance
On-site Maintenance
24 Hour On-Site Security
24 Hour On-Site Security
Pet Friendly
Pet Friendly
Parcel Lockers
Parcel Lockers
Courtyard Gardens
Courtyard Gardens
Club Room Communal Areas
Club Room Communal Areas
Independent Bars, Shops & Restaurants
Independent Bars, Shops & Restaurants
Resident Events
Resident Events
Secure Bike Storage
Secure Bike Storage
Secure Car Parking
Secure Car Parking

At Get Living, we are committed to creating choice for people who rent and offer a variety of new build apartments in different styles and layouts so you can find a new home suited to you. We make the renting process as easy as possible with flexible tenancy lengths up to three years.

We believe that renting a home should be more than just a place to live. It should be a place to thrive. We purposefully choose locations with brilliant transport links that are easily accessible to green spaces. Your friendly resident team, dedicated maintenance and on-site security make the everyday life a breeze.

Pet Friendly
Pet Friendly
Wi-Fi Included
Wi-Fi Included
Easy Rental Process
Easy Rental Process
On-site Security
On-site Security
Keyless Entry
Keyless Entry
Various Layouts & Styles Available
Various Layouts & Styles Available
Freedom To Decorate
Freedom To Decorate
Leading Kitchen Appliances
Leading Kitchen Appliances
Residents' App
Residents' App
Independent Retailers
Independent Retailers
Varied Calendar Of Events
Varied Calendar Of Events
As a Get Living resident you are eligible to:
  • Flexible, secure tenancies – contracts starting from a minimum of 10 months up to 36 months
  • Wi-Fi included in your rent, ready to be set-up from day one
Additional charges for services include:
  • Utilities (electricity, gas or other fuel, water, sewerage), communication services (telephone, cable/satellite television), TV licence
  • Council tax
  • Interest payments for the late payment of rent (up to 3% above Bank of England’s annual percentage rate)
  • Reasonable costs for replacement of lost keys or other security devices
  • Contractual damages in the event of your breach of the tenancy agreement
Optional facilities and benefits:
  • Pet-friendly
    Get Living allows pets to live with you at no extra cost where residents have agreed to our pet policy, read our FAQs for more details.
  • Car parking
    We may be able to offer you a secure parking space for your vehicle, subject to your building, neighbourhood, availability, licence and licence fee. Please contact the Get Living team to enquire or visit our FAQs for more information.
  • Storage pods
    We may be able to offer you a storage pod, subject to your building, neighbourhood and availability. Please enquire with the neighbourhood team to find out if they are available.
Advanced rental payment:

Once you have chosen your new home, we will require you to make an Advanced Rental Payment to confirm the reservation. This is a fixed figure advance payment and will equate to no more than one week’s rent.

The Advanced Rental Payment will be requested at the start of the application process. Once received, we will confirm that the home has been reserved for you (subject to contract and references). Read the full terms and conditions under which we accept this payment.

Referencing:

Thanks to our referencing partner, you can say goodbye to painful paperwork and complete your affordability assessment, credit checks and referencing in a matter of minutes, at the click of a few buttons.

Our team will access and review your referencing details. We do not typically ask for employment references, but we might ask to see your last three months’ payslips and corresponding bank statements, your employment contract or, if you are self-employed, your most recent tax return. From time to time, we may ask for additional information to support your application.

Tenancy deposits:

When you rent a home with Get Living, a refundable tenancy deposit is required as part of your tenancy agreement. This helps ensure the property and rent are protected throughout your tenancy.

The deposit is equivalent to five weeks rent and is payable before your tenancy starts. Once received, we’ll register the deposit under the Tenancy Deposit Custodial Scheme (TDS) for safekeeping.

Your deposit is held securely and protected for the duration of your tenancy. Within 30 days of payment, you’ll receive confirmation that your deposit has been registered and information about how it’s protected.

Proof of address & Right to Rent:

We are also required to prove your identity and that you have the Right to Rent in England. We will ask for proof of your current address and to make physical copies of your passport or other suitable identity documents. If you have a time limited right to remain in the UK, we will need to complete this check no sooner than 28 days before the start of the tenancy, in line with the Immigration Act, 2014.

We appreciate not everyone’s circumstances are the same and if you do have any questions that are not covered in the above, please do contact the Get Living team.

Accreditation:

Get Living is a member of several professional bodies including:

  • Tenancy Deposit Scheme (TDS) – A Government-approved tenancy deposit scheme providing award-winning Insured and Custodial deposit protection.
  • The Property Ombudsman (TPO) and Chartered Trading Standards Institute (CTSI) – A Government-approved consumer redress scheme.
  • ARLA Propertymark – The UK’s foremost professional body for letting agents. This includes the Propertymark Client Money Protection Scheme. The following neighbourhoods are part of the Client Money Protection Scheme: East Village, Elephant Central, New Maker Yards, One Maidenhead and Sherlock Quarter.

You can find more information on Get Living’s accreditation here.

Take a tour of the home

Please note this is a representative virtual tour of this home size in this neighbourhood. Décor, furnishing and layouts may differ.

£2,495 pcm

1 bedroom Raglan House, London, SE1 6TJ

Video Tour

Shop & Eat at Elephant Central

CheeMc Elephant & Castle

Korean Restaurant

Authentic Korean fried chicken and street food restaurant bringing the flavours of Korea to London.

Restaurants

Gymbox, Elephant and Castle

Gym and Combat Training

Gymbox is home to the most unique and diverse classes in London. Expect Olympic-sized boxing rings, combat cages, world-class free weights sections, live DJs and larger-than-life personal trainers.

Services
Hands holding a traditional Xi'an Murger with other food in the background at Murger Han restaurant

Murger Han, Elephant and Castle

Chinese Restaurant

Murger Han is London's first authentic Xi'an cuisine restaurant. Open from breakfast to dinner, they serve Murgers (a popular Chinese street food), soup and hand pulled noodles.

Restaurants

Pizza Pappagone Sud

Open since 1998 by two friends Marco and Marco, Pizza Pappagone Sud is a lively, fun Italian restaurant and pizzeria. Family-friendly atmosphere with an extensive food and cocktail menu.

Restaurants

Yohome Elephant & Castle

Asian Supermarket & Bubble Tea Shop

Find all your favourite Asian snacks, groceries and ingredients from the continent. Yohome doubles up as a bubble tea shop and a spot to grab a light bite to eat including fried chicken and Japanese patisserie desserts.

Cafés Shops

Our latest properties to rent

Available Now
Image 1: Raglan House, London, SE1 6TJ
Image 2: Raglan House, London, SE1 6TJ
Image 3: Raglan House, London, SE1 6TJ
Image 4: Raglan House, London, SE1 6TJ
Image 5: Raglan House, London, SE1 6TJ
Image 6: Raglan House, London, SE1 6TJ
Image 7: Raglan House, London, SE1 6TJ
Image 8: Raglan House, London, SE1 6TJ
Image 9: Raglan House, London, SE1 6TJ
Image 10: Raglan House, London, SE1 6TJ
Image 11: Raglan House, London, SE1 6TJ
Image 12: Raglan House, London, SE1 6TJ
Image 13: Raglan House, London, SE1 6TJ
Image 14: Raglan House, London, SE1 6TJ
Image 15: Raglan House, London, SE1 6TJ
Image 16: Raglan House, London, SE1 6TJ
Image 17: Raglan House, London, SE1 6TJ
Image 18: Raglan House, London, SE1 6TJ

£2,495 pcm

1 bedroom

Raglan House, London, SE1 6TJ

  • Black Friday at Get Living – Price reductions on selected homes + £250 Amazon voucher

A one bedroom, one bathroom home with a private balcony, offering showstopper views of the capital in a Zone 1 location. Within walking distance of the South Bank, London Bridge and Borough and a vibrant community right on the doorstep.

Available Now
Image 1: Raglan House, London, SE1 6TJ
Image 2: Raglan House, London, SE1 6TJ
Image 3: Raglan House, London, SE1 6TJ
Image 4: Raglan House, London, SE1 6TJ
Image 5: Raglan House, London, SE1 6TJ
Image 6: Raglan House, London, SE1 6TJ
Image 7: Raglan House, London, SE1 6TJ
Image 8: Raglan House, London, SE1 6TJ
Image 9: Raglan House, London, SE1 6TJ
Image 10: Raglan House, London, SE1 6TJ
Image 11: Raglan House, London, SE1 6TJ
Image 12: Raglan House, London, SE1 6TJ
Image 13: Raglan House, London, SE1 6TJ
Image 14: Raglan House, London, SE1 6TJ

£2,520 pcm

1 bedroom

Raglan House, London, SE1 6TJ

A one bedroom, one bathroom home with a private balcony, offering showstopper views of the capital in a Zone 1 location. Within walking distance of the South Bank, London Bridge and Borough and a vibrant community right on the doorstep.

Available Now
Image 1: Raglan House, London, SE1 6TJ
Image 2: Raglan House, London, SE1 6TJ
Image 3: Raglan House, London, SE1 6TJ
Image 4: Raglan House, London, SE1 6TJ
Image 5: Raglan House, London, SE1 6TJ
Image 6: Raglan House, London, SE1 6TJ
Image 7: Raglan House, London, SE1 6TJ
Image 8: Raglan House, London, SE1 6TJ
Image 9: Raglan House, London, SE1 6TJ
Image 10: Raglan House, London, SE1 6TJ
Image 11: Raglan House, London, SE1 6TJ
Image 12: Raglan House, London, SE1 6TJ
Image 13: Raglan House, London, SE1 6TJ

£2,525 pcm

1 bedroom

Raglan House, London, SE1 6TJ

A one bedroom, one bathroom home with a private balcony, offering showstopper views of the capital. Within walking distance of the South Bank, London Bridge and Borough and a vibrant community right on the doorstep.

 

Can’t find what you are looking for?